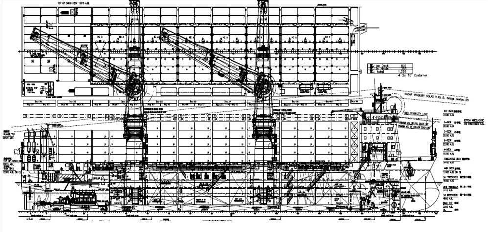
佳作奖: 19700吨HS2单舱大开口超级海工重吊船 0

所属单位: 浙江欧华造船股份有限公司

主创团队: 王传兴 , 于晓龙 , 秦言明 , 樊孝和 , 颜盛汉

作品ID:201600247
作品介绍

这是针对海上大件和散件运输而设计开发的高技术高附加值特种船舶产品。通过船体线型和结构优化设计、船体结构强度、破舱稳定性、吊装稳性、固态压载的使用等多项关键技术满足了海上大件和散件运输的需求,实现了单船销售2.3亿元人民币,远超同类型产品单价的销售奇迹,在大型重吊船的建造领域具有独创性和示范性。

订阅新闻
Copyright © 2026 Design Intellgence Award . All rights reserved
EN